Stylish Design with Family Flexibility.
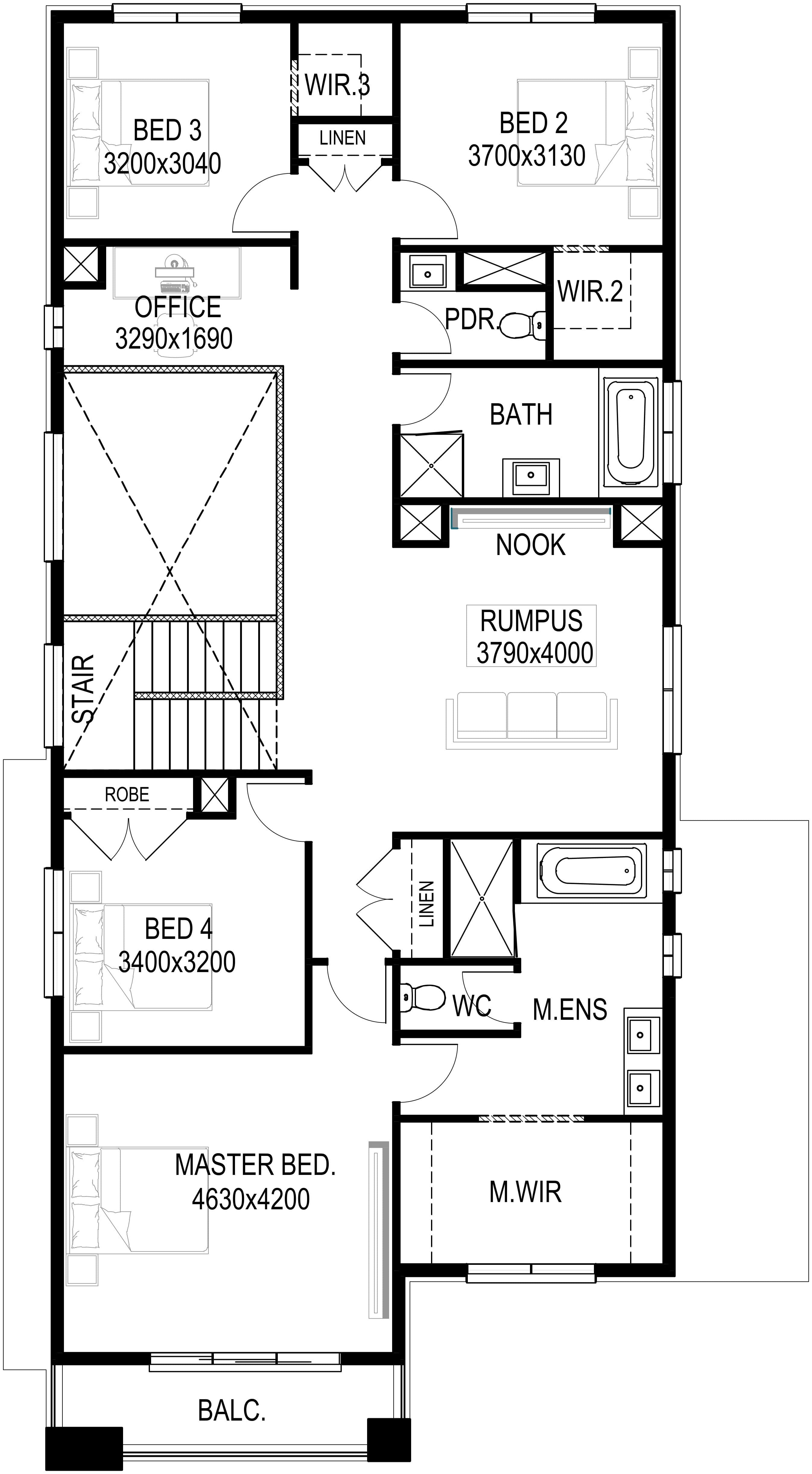
The Hawkins 39 delivers a modern layout that perfectly suits family living and entertaining. The ground floor includes a private guest suite, lounge, and an expansive open-plan kitchen, meals, and family area that connects effortlessly to the alfresco. Upstairs, the master suite impresses with a large walk-in robe, ensuite, and balcony retreat, while three additional bedrooms, a rumpus, office, and study nook provide plenty of space for work, rest, and play. With multiple living zones and thoughtful details throughout, the Hawkins 39 is a home designed to adapt to every stage of family life.
Hawkins
September 2025 pricing shown. Pricing is based on a site that’s titled. Alternate pricing applies for building in central Melbourne & Mornington Peninsula regions. Find out more.
Specifications
- Total Area357.36
- Stories2
- Min Block Width12.5
- Min Block Depth28
- House Width11.3
- House Length20.5
21 available facades for the Hawkins
Disclaimer: Facade images are to be used as a guide only, these may depict upgrade options and may not be house specific. Details such as entry doors, render, window sizing and placement may vary between house types and sizes. Concrete driveway, brick infill, landscaping and fencing is not included. Please obtain house specific drawings from your consultant to assist you in making your facade choice. Facade options are subject to developer and council approval.

































